时间:2023-05-30
“中原腹地,天地之中”——郑州,一个旧章与新篇交汇之地,鲜衣怒马,行之常俗,充满无限可能,拥有别具一格的形体。

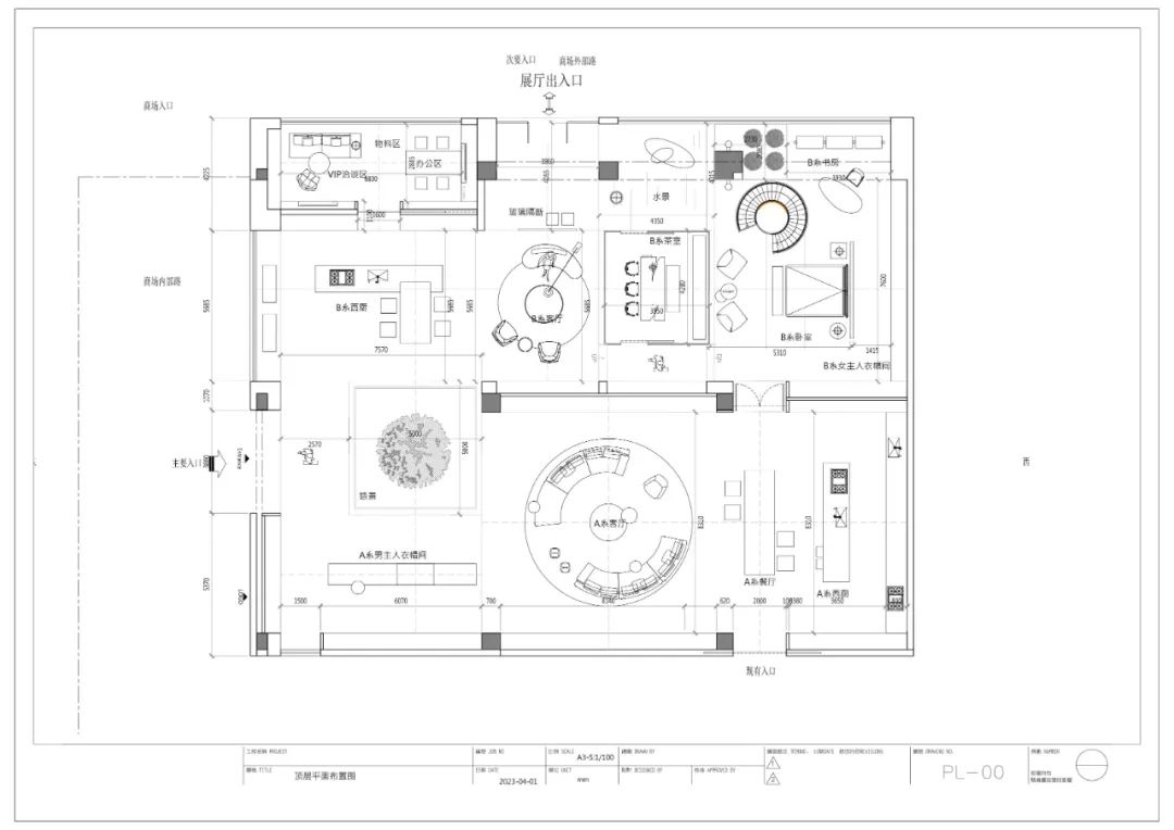
秩序、对称、线型勾勒出空间的美感。空间的特点得到放大,拉伸空间的层次,同时制造惊喜,客餐厅规则的空间分布,被柔和的光环中和,光环又与环形家具形成匹配,强化装置艺术。
透明的玻璃和绿植恰好分隔视线,制造惊喜,目光所致,皆有所赏,让人怦然心动。
客厅的存在满足其初始的功能性,以书为媒介的书柜背景,让空间更加贴近生活透出底蕴。
厨房将空间的轻奢之美发挥的非常彻底。多功能岛台居中为轴,厨房整体呈现回字形,优化空间动线的同时增强空间流动性,为家人共厨时提供互动条件,于餐食之外享受更加和谐的生活乐趣。
餐厅错落有致的布局,叠加出曲直交错的形意,摆件、餐椅、灯光等元素交融在一起,增添生活魅力。
间借由形体、线条、色彩的形式组合或结构来表现,添一分则累赘,少一分则寡淡,恰到好处地表现出空间的视觉张力。
书房整体设计强调“静与境”的共融相生,追求自然之感中的高贵气质,透过温润质朴的肌理营造气质与温度。
以流水为笔,光影为墨,以青石点风,营造出静谧自然的空间,内景是自然,外景也是自然,模糊空间的边界,让你瞬间分不清是置身室内还是室外。
拾级而上,缓缓推开那一间茶舍,围炉而坐,此时茶碗中玉浮翻动,清香四溢,回眸时透过那一层门上的绢纱,便是池中莲花。这一次祛除尘廛,将所有的荣辱与过往付与清风明月,浮云流水。不需要过多装饰,给人以空间美感.
茶室的设计重在氛围营造,以纯粹、自然为本,空间指向静谧、充实的意境。通透的隔断、黑金色的茶具、悠然的氛围,大大丰富了空间的层次感。
古典美学关注的是形式审美价值,强调视觉的表达,而现代美学探索的是空间的体验和使用价值,更加强调空间中的活动。
空间中所有的土木砖瓦石、皮革金属、在这一刻得以碰撞融合,诠释出别样的空间形态,出人意料,却在情理之中。卧室中法式的线条拼花,在现代极简的空间中完美释放,强化线条的同时,反衬出整个空间更为灵动活泼。
主卧与开放式书房的结合,活化空间机能,时而独立时而共用,亦满足现代人的需求,强调功能与美学的平衡。
纹理温润自然的皮革铺陈整个衣帽间,精致的细节及素净的结构,诠释了对空间的协调。温暖的灯光搭配镁铝合金玻璃衣柜,同时具有通透性和实体性,简约硬朗又不失自然柔美。
德鲁尼还在继续探索更多生活空间的可能性,借由高端定制直接应用,让居住者从产品到生活方式直接和品牌对话。
德鲁尼高端定制郑州店地址:
河南省郑州市郑东新区商都路与农业南路交汇处
下一篇:德鲁尼 CRM 系统使用说明